REQUEST A TOUR If you would like to see this home without being there in person, select the "Virtual Tour" option and your advisor will contact you to discuss available opportunities.
In-PersonVirtual Tour

$ 3,250,000
Est. payment /mo
Active
602 11 Avenue NE Calgary, AB T2E0Z7
5,252 SqFt
UPDATED:
Key Details
Property Type Multi-Family
Sub Type Freehold
Listing Status Active
Purchase Type For Sale
Square Footage 5,252 sqft
Price per Sqft $618
Subdivision Renfrew
MLS® Listing ID A2269012
Lot Size 6,000 Sqft
Acres 6000.0
Property Sub-Type Freehold
Source Calgary Real Estate Board
Property Description
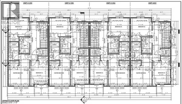
Exceptional Investment Opportunity – Brand-New 4-Plex in Renfrew!Elevate your portfolio with this architecturally striking, purpose-built 4-plex in desirable Renfrew—minutes from downtown Calgary. Each modern townhome features three bedrooms plus a fully legal one-bedroom basement suite, for a total of eight self-contained units, each with private entrances and separate mechanical systems.Built with premium, low-maintenance finishes—stucco, quartz countertops, stainless steel appliances, luxury vinyl plank flooring, and energy-efficient windows—this property offers strong rental appeal and reduced operating costs.Enjoy timeless curb appeal with a cohesive design, professional landscaping, and modern exterior lighting. Close to Deerfoot trail, 16th Ave, transit, parks, and schools, this location ensures consistent demand and excellent returns.Eligible for CMHC's MLI Select program, offering enhanced financing options.Don't miss this rare, high-yield multi-family investment—contact us today! Completion in March 2026. (id:24570)
Location
State AB
Rooms
Kitchen 0.0
Exterior
Parking Features Yes
View Y/N No
Total Parking Spaces 4
Private Pool No
Others
Ownership Freehold






